Franklinville, NC 27248

Customer Support

Mon - Fri: 9AM - 5:00PM

Sat - Sun: By appointment only

Anthem / The Sugar Run Duplex

3D Tour

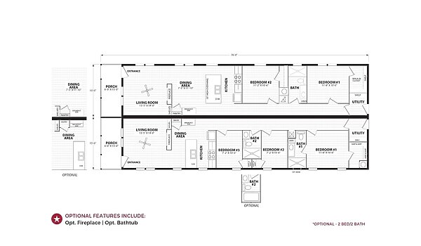
Floor Plan

Details

ManufacturedMulti-Family

BEDS: 3     BATHS: 2.00     SQ FT: 1050     W X L: 15′ 0″ x 76′ 0″

BUILT BY: Cavco Rocky Mount

The Anthem / The Sugar Run Duplex built by Cavco is a multi-family manufactured home designed for flexibility and modern living. Each unit features 1,140 square feet, with the first half offering 3 bedrooms and 2 bathrooms, while the second half includes 2 bedrooms and 1 bathroom. This well-planned layout provides comfort, privacy, and efficiency for multiple households. The Sugar Run Duplex is a versatile housing solution with exceptional space and style.

Specifications

Additional Specs: House Wrap / Energy Star Envelope
Exterior Wall Studs: 2x6 Exterior Walls
Other: Window and Door Casing Throughout / Recessed Chassis / Removable Hitch
Side Wall Height: 8-Feet Flat Ceilings
Insulation Specs: Energy Star R-Value Insulation
Front Door: 82-Inch 6-Panel Steel Front Door / Optional Full View Glass Storm Door with Hardware for Front Door - Shipped Loose
Rear Door: 82-Inch 6-Panel Steel Rear Door / 82-Inch Full View Glass Storm Door with Hardware for Door
Shingles: 30 Year Architectural Shingles
Window Trim: Trim/Lineals on All Windows
Window Type: Low E Thermal Vinyl Windows
Exterior Lighting: Black Lantern Light at Doors
Exterior Outlets: Exterior GFI Receptacle
Ceiling Fans: Ceiling Fan in Living Room
Window Treatment: 2-Inch Blinds Throughout
Molding: Ceiling and Base Molding Throughout
Wall Finish: Finished Drywall Throughout
Interior Doors: 80-Inch White 2-Panel Interior Doors
Interior Lighting: 6-Inch Recessed LED Lights Throughout
Interior Flooring: Linoleum
Electrical Service: 200 Amp Service
Furnace: Electric Furnace / Return Air Grill with Filter Access / Furnace Door
Bathroom Cabinets: 36-Inch Vanity Height in All Baths / Walk-In Closet in Bedrooms / Wood Shelving in Closets
Bathroom Sink: Porcelain Low Profile Sink
Bathroom Lighting: Recessed Can Lights in Bathroom Above Vanity
Bathroom Flooring: Linoleum
Bathroom Faucets: Brushed Nickel Single Lever Faucets
Bathroom Additional Specs: Transom Window in Bathroom
Bathroom Shower: Fiberglass Shower with Glass Door in Bathrooms
Bathroom Toilet Type: Raised Height Elongated Commodes
Bathroom Mirror: Framed Mirrors in Bathrooms
Kitchen Sink: Stainless Steel Drop-In Kitchen Sink
Kitchen Refrigerator: Stainless Steel - 18 CF Refrigerator with Icemaker
Kitchen Range Type: Stainless Steel Smoothtop Range
Kitchen Range Hood: Stainless Steel Chimney Range Hood
Kitchen Flooring: Linoleum
Kitchen Dishwasher: Stainless Steel Dishwasher
Kitchen Cabinetry: 42-Inch Overhead Cabinets / Lined Kitchen Cabinets with 2 Shelves / Lined Base Cabinets with Center Shelves / Cabinet Crown on All Overheads / Refrigerator Overhead Cabinet / MDF Shaker Cab Door with Knobs and Hidden Hinges
Kitchen Backsplash: Full Tile Backsplash to Ceiling Behind Range / 1 Row Ceramic Tile Backsplash
Kitchen Microwave: Stainless Steel Countertop Microwave

Tours & Videos

Gallery

Please note:

All sizes and dimensions are nominal or based on approximate builder measurements. 3D Tours and photos may include dealer and/or factory installed options. Brady Homes reserves the right to make changes due to any changes in material, color, specifications, or features at any time without notice or obligation.